OUTLINE proposals have been approved by Waverley planners in the face of more than 250 objections – and claims they are an “affront to commonsense”.
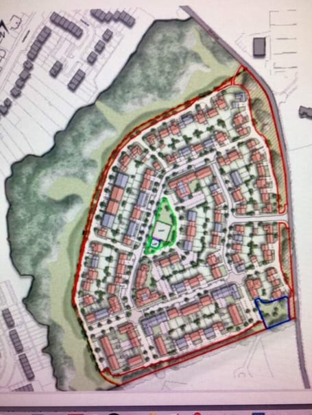
Campaign to Protect Rural England joined Witley Parish Council in urging Waverley planners to refuse a scheme for up to 200 new homes on “unsustainable” land at Milford Golf Club that is also subject to a restrictive covenant.
But joint planning committee members supported their officers’ recommendation that consent should be granted at their meeting on February 20, voting 10-5 in favour, with three abstentions.
Two statutory authorities – the Environment Agency and Natural England – originally objected to the housing development, including 60 affordable homes, on land in a flood zone close to a special protection area that is home to three internationally-rare bird species. But both subsequently withdrew their objections.
Residents have protested the suitable alternative natural green space (SANG) offered in mitigation for the loss of former green belt land is largely inaccessible “swamp”.
Neighbours Tim and Isobel House commissioned an independent transport report that rejected Surrey Highways conclusion that Station Lane could cope with the traffic increase.
Lead campaigner Mr House, a litigation chief, used the public slot before councillors determined the application to urge them to throw it out.
Mr House said: “The reality is this is a commercially-inspired scheme to cram up to 200 houses on to a flood plain with a sole access point on to a narrow, already-congested, poorly-maintained dangerous country lane.
“There is no footpath at all for children walking to Rodborough School. Their walk is along an even narrower, unlit lane which will become a rat run for traffic avoiding the bottleneck in Milford.
“There are three critical factors to take into account when considering this application. First, this site will never deliver anything approaching 175 houses in five years. The restrictive covenant will inevitably prevent that.
“The council knows the only way for the restrictive covenant to be overcome in this case is through litigation. The closest analogous legal challenge to such a covenant took over five years to resolve from the application for planning permission to the final appeal judgment.
“The developer lost that case, notwithstanding the grant of planning permission and the fact 23 houses had already been built. It now faces having to demolish those houses.
“Second, Local Plan Part 1 (LPP1) did not involve any proper comparative analysis of alternative sites. The fatal flaw in this planning application is that on multiple occasions, contrary to the relevant policies and guidance, no consideration has been given to the availability of suitable alternative sites where a development of this scale would cause less harm.
“Third, LPP1 is subject to on-going unresolved legal challenge based on its use of outdated numbers. There is no longer any clarity at all that a development of this size is required in Milford to meet the objectively-assessed need of the borough.
“The objectively-assessed need should be based on current Office of National Statistics figures calculated in accordance with the 2018 National Planning Policy Framework, because that calculation could make clear this site is not needed to meet the housing need or to reduce the five-year supply.
“A decision to approve this application would be objectionable on multiple technical grounds. But it would also be an affront to common sense and responsible local administration. A far more rational outcome would be to refuse it until the Local Plan Part 2 is complete and then reconsider any revised proposal in the light of a full understanding of available alternatives and a proper, up-to-date assessment of the objectively assessed need.”
Consent was approved subject to an informative to developer Stretton Milford that it is unlikely to get more than 180 homes on the site.





Comments
This article has no comments yet. Be the first to leave a comment.